Ga terug

Oeverpad 575, Amsterdam

โ‚ฌย 625.000,- k.k.

Dit huis bezichtigen?

Vraag direct een bezichtiging aan

146 mยฒ
2 slaapkamer(s)
Energielabel APLUS

Omschrijving

Wonen met uitzicht over de Sloterplas โ€“ Oeverpad 575, Amsterdam

Aan de westzijde van Amsterdam, direct aan de Sloterplas, ligt dit uitzonderlijk ruime en lichte appartement van maar liefst 146 mยฒ. Gelegen op de vierde verdieping van een modern complex (bouwjaar 2005) in de geliefde wijk Amsterdam-West, biedt Oeverpad 575 alles wat starters, jonge gezinnen en expats zoeken: comfort, ruimte, licht en een uniek vrij uitzicht.

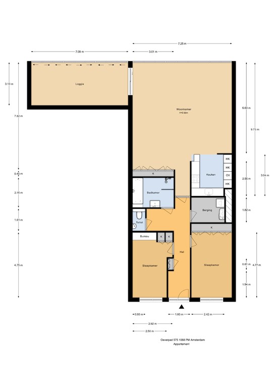
Indeling;
Op de begane grond bevindt zich de verzorgde gemeenschappelijke entree met brievenbussen en bellentableau. Vanuit hier is er toegang tot de afgesloten binnenplaats met eigen parkeerplaats en de bergingen.

Via de lift bereikt u de vierde verdieping. Het appartement ligt aan de galerij en biedt bij binnenkomst een ruime hal met toegang tot alle vertrekken.
Aan de voorzijde bevinden zich twee slaapkamers:
– De royale master bedroom met ruime inbouwkast
– Een tweede slaapkamer met geรฏntegreerd bureau โ€“ ideaal als kinder-, werk- of logeerkamer

De woonkamer is zonder twijfel het hart van de woning: uitzonderlijk ruim, bijzonder licht en voorzien van een volledige raampartij over de gehele breedte. Hier geniet u dagelijks van een panoramisch uitzicht over de Sloterplas.

De open keuken is compleet uitgerust met alle wenselijke inbouwapparatuur en sluit naadloos aan op de leefruimte. Vanuit de woonkamer is er toegang tot de serre, die flexibel in te richten is als extra zitruimte, werkplek of speelruimte.

De badkamer is compleet uitgevoerd met:
– Inloopdouche
– Ligbad
– Badkamermeubel met wastafel

Daarnaast beschikt de woning over een separaat toilet en een aparte wasruimte met cv-opstelling en WTW-installatie.

Erfpacht;
De woning is gelegen op gemeentelijke erfpacht (voortdurend recht) onder de voorwaarden AB2000. Het huidige tijdvak loopt tot en met 30 november 2053.
De jaarlijkse canon bedraagt โ‚ฌ 3.345,02 en wordt jaarlijks geรฏndexeerd.

Kenmerken;
* Woonoppervlakte: 146,2 mยฒ (NEN 2580 gemeten)
* Energielabel A+
* Eigen parkeerplaats รฉn berging
* Professioneel beheerde VvE (VT200)
* Servicekosten: โ‚ฌ 289,85 per maand
* Lift aanwezig
* Vrij en ruim uitzicht over de Sloterplas
* Leeg en per direct beschikbaar
* Volledig gelijkvloers wonen

*****Translation******

Living with a View over the Sloterplas โ€“ Oeverpad 575, Amsterdam

On the western side of Amsterdam, directly overlooking the Sloterplas, you will find this exceptionally spacious and bright apartment of no less than 146 mยฒ. Situated on the fourth floor of a modern residential complex (built in 2005) in the highly sought-after district of Amsterdam-West, Oeverpad 575 offers everything starters, young families, and expats are looking for: comfort, space, natural light, and a unique unobstructed view.

Layout:
The well-maintained communal entrance on the ground floor features mailboxes and an intercom system. From here, there is access to the secured courtyard with a private parking space and the storage units.

The apartment is reached via elevator to the fourth floor. Located along the gallery, the property welcomes you into a spacious hallway providing access to all rooms.

At the front of the apartment, you will find two bedrooms:
– A generous master bedroom with a large built-in wardrobe
– A second bedroom with an integrated desk โ€“ ideal as a childโ€™s room, home office, or guest room

The living room is undoubtedly the heart of the home: exceptionally spacious, filled with natural light, and featuring floor-to-ceiling windows across the entire width of the apartment. From here, you can enjoy panoramic views over the Sloterplas every single day.

The open-plan kitchen is fully equipped with all desirable built-in appliances and seamlessly connects to the living area. From the living room, you have access to the conservatory, which can be flexibly arranged as an additional seating area, workspace, or playroom.

The bathroom is fully fitted with:
– Walk-in shower
– Bathtub
– Vanity unit with washbasin
Additionally, the apartment includes a separate toilet and a dedicated laundry/utility room with central heating system and heat recovery ventilation (HRV).

Leasehold;
The property is situated on municipal leasehold land (perpetual leasehold) under the AB2000 conditions.
The current lease period runs until November 30, 2053.
The current annual ground rent amounts to โ‚ฌ3,345.02 and is subject to annual indexation.

Key Features;
* Living area: 146.2 mยฒ (measured in accordance with NEN 2580)
* Energy label A+
* Private parking space and separate storage unit
* Professionally managed homeownersโ€™ association (VT200)
* Service charges: โ‚ฌ289.85 per month
* Elevator present
* Wide and unobstructed views over the Sloterplas
* Vacant and available immediately
* Fully single-level living

Faciliteiten

  • Ventilatie

Parkeren

Kenmerken

  • Bouw

    • Soort woonhuis Appartement, Galerijflat, Appartement
    • Soort bouw Bestaande bouw
    • Bouwjaar 2005
  • Oppervlakten en inhoud

    • Gebruiksoppervlakten
      • Wonen: 146 mยฒ
    • Perceel 6431 mยฒ
    • Inhoud 467 mยณ
  • Indeling

    • Aantal kamers 3 kamers (2 slaapkamers)
    • Aantal badkamers 1 badkamers en 1 aparte toiletten
    • Badkamervoorzieningen Ligbad, wastafelmeubel, en inloopdouche
    • Voorzieningen Lift, Schuur/berging, Mechanische ventilatie
  • Energie

    • Energielabel APLUS
    • Isolatie Volledig geรฏsoleerd, Dubbelglas
    • Verwarming CV-ketel
    • Warmwater CV-ketel
    • Cv-ketel 1 gas gestookt uit 2013 combiketel

Interesse in deze woning?
Neem contact op met Sijmon de Boer

  • Telefoon: 0647978752
  • E-mail: sijmon@vanhuisuit-makelaars.nl
Maak een afspraak

Wij kijken uit naar iedere bezichtiging

Heeft u een vraag of behoefte aan advies? Wij voorzien u graag van informatie over aankoop, verkoop, verhuur en expatservices in Amsterdam en Amstelveen.